ELESS ARCHITECTURE & INTERIOR DESIGN COLSUTANCY COMPANY LIMITED

CÔNG TY TNHH TƯ VẤN THIẾT KẾ KIẾN TRÚC & NỘI THẤT ELESS

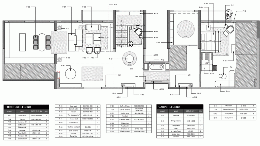
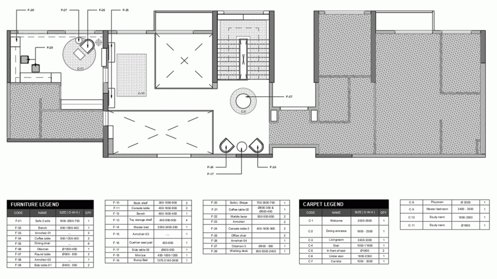
Vista Verde Apartment – 5bedrooms

  • Design by: eless design studio
  • Area: 440 sqm
  • Finish: 2024
  • Contractor: NGO Interiors Viet Nam